新闻中心
NEWS CENTER

新闻中心

  1. 首页
  2. 新闻中心
  3. 新闻中心

错层住宅的正确装修姿势,一人拥有一个衣帽间

文章来源:极家精装发布日期:2021-06-20

今天要要分享的这套装修实例,设计师正是针对问题一一化解,将这套房子真正变成了一套舒服、通透、富有现代感的住宅。



面积:147平米

户型:三房两厅

风格:现代

图片

设计师:杨厚林


图片

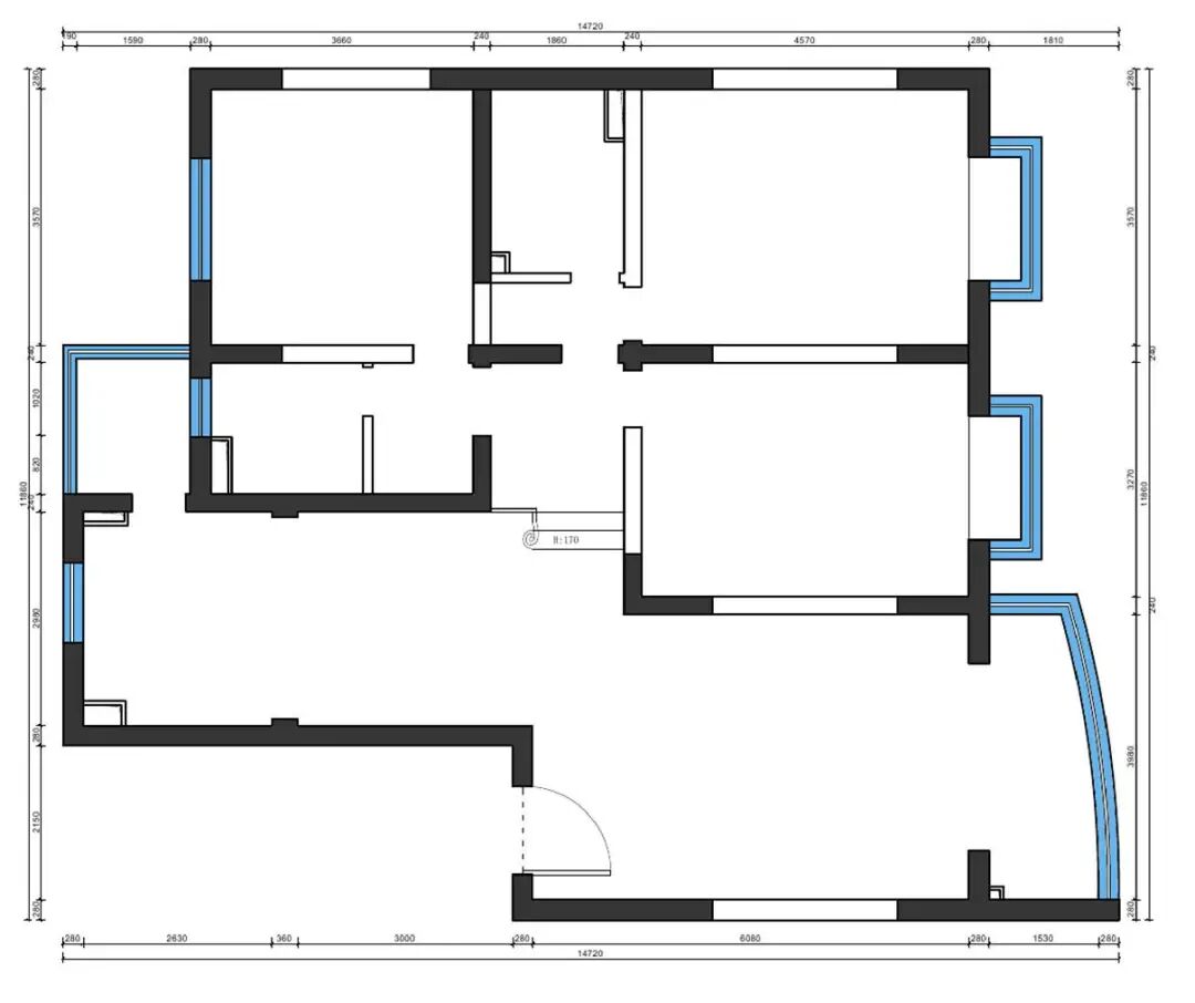
△ 原始户型图

图片

△ 装修布局图


 

 # 存在问题


1、 错层导致整体通风采光欠缺。细节原因:入户门推门即是玄关柜,阻断了光线;餐厅和厨房之间原来的移门不够通透;南北卧室空气不对流。

2、 储物空间不够,男女业主各自东西都很多,找东西很难。

3、舒适度不够:没有安装地暖、中央空调、新风系统。


 # 设计亮点 


1、 将隔断式玄关柜移到靠墙一侧;将厨餐厅移门移门更换成四联玻璃移门;将南北卧室门改为对开。

2、 每个房间都规划衣帽间,特别是主卧有两个衣帽间。

3、 加装地暖、中央空调、新风系统。



进门鞋柜与客厅背景墙连为一体,达到了客户要求的进门要眼前开阔明亮的效果。


图片


竹纤维电视背景墙、翠涛色沙发,经典的自然派。电视柜用一体式大理石地台取代电视柜,使地面与家居形成一个整体,顶部层级吊顶的方式增加空间的高度感,也弱化了设备的存在感。


图片


厨餐厅打通,形成一个整体,顶面与各种柜子都有设计灯光效果,流光溢彩温馨舒适。


图片


厨餐厅一侧灰白拼的竹纤维护墙板别致有设计,同时也是向厨房区域自然过渡的小心机。两个区域之间还增加了中岛功能,互动性更强。


图片


厨房灰色大理石纹地砖直接上墙,大气内敛,无拉手柜门后期打扫更加方便。


图片


厨房和北阳台开放式的结构,即是整体,又是功能上的分区,定制厨柜使得厨房操作起来更方便,还可以放下厨房小家电,并配置了净水设备。


图片


工作阳台的纳入,也使得厨房更明亮。


图片


踏步台阶是这个家动静分区的关键之处,原来转角一侧仅做了一个扶手,空间浪费颜值一般。改成储物柜以后使得客厅背景更完整好看。


图片


主卧减少主卫空间后分隔出两个独立的L型衣帽间,睡眠区域减少后,只采用了

蓝白色调,使得空间纯粹。


图片


主卧两个衣帽间妥妥实现了了男女主人衣物分类摆放的理想。同时,主卫只保留马桶与台盆,避免了主卫没有窗户而担心的潮湿问题,并把多的空间给到衣帽间。


图片
图片


女儿房用色大胆,孔雀蓝背景与橙色床品非常吸睛。同时增加女儿房衣帽间,并将衣帽间的外部空间作成了手办展示柜。


图片


书房既是读书、工作的地方,也是业主的收藏品展示空间。真可味 “古味”十足,福禄(葫芦)双全。


图片


书房一角,也是品茶会客的好地方。


图片


公共卫生间采用干湿分离,扩大了干区面积并可增加干区浴室柜的收纳。


图片


湿区淋浴房采用边槽式下水,使得冲淋时排水更加通畅。


图片


客厅半圆弧的阳台,白色落地窗纱,蓝色沙发,喝咖啡晒太阳,太享受。


图片



设计师私房妙招

1、 装修时,有的家庭不喜欢开门见厅,会在入户门设置玄关隔断,但这种做法也要因地制宜,比如如果室内的光线并不好,再来一个隔断,就会使居住的舒服度大打折扣。这也是为什么本案中将原来的玄关隔断拆除规划在靠墙一侧的原因。


2、 错层的房子会比较容易出设计感和新鲜感,但是不适合行动不便的人群居住,家里有孩子的也要注意防护。


×

关注极家精装公众号

×
×